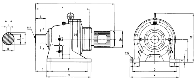
二級(jí)臥式直聯(lián)型外形安裝尺寸 圖表
FWED型8165/09~8255/19

|
機(jī)型號(hào) |
尺寸 |
|
Z |
H |
DC |
P |
Q |
M |
W |
E |
H1 |
F |
T |
N-G |
輸出端 |
|
D |
L |
B |
t |
h |
s×m |
|
8165/09 |
373 |
160 |
300 |
150 |
370 |
238 |
410 |
139 |
356 |
25 |
75 |
4-φ18 |
60 |
90 |
18 |
53 |
64 |
M10×18 |
|
8165/10 |
384 |
160 |
300 |
150 |
370 |
238 |
410 |
139 |
356 |
25 |
75 |
4-φ18 |
60 |
90 |
18 |
53 |
64 |
M10×18 |
|
8165/11 |
389 |
160 |
300 |
150 |
370 |
238 |
410 |
139 |
356 |
25 |
75 |
4-φ18 |
60 |
90 |
18 |
53 |
64 |
M10×18 |
|
8175/09 |
418 |
200 |
340 |
275 |
380 |
335 |
430 |
125 |
425 |
30 |
80 |
4-φ22 |
70 |
90 |
20 |
62.5 |
74.5 |
M12×24 |
|
8175/10 |
432 |
200 |
340 |
275 |
380 |
335 |
430 |
125 |
425 |
30 |
80 |
4-φ22 |
70 |
90 |
20 |
62.5 |
74.5 |
M12×24 |
|
8175/11 |
436 |
200 |
340 |
275 |
380 |
335 |
430 |
125 |
425 |
30 |
80 |
4-φ22 |
70 |
90 |
20 |
62.5 |
74.5 |
M12×24 |
|
8185/10 |
474 |
220 |
370 |
320 |
420 |
380 |
470 |
145 |
460 |
30 |
85 |
4-φ22 |
80 |
110 |
22 |
71 |
85 |
M12×24 |
|
8185/13 |
496 |
220 |
370 |
320 |
420 |
380 |
470 |
145 |
460 |
30 |
85 |
4-φ22 |
80 |
110 |
22 |
71 |
85 |
M12×24 |
|
8195/11 |
556 |
250 |
430 |
380 |
480 |
440 |
530 |
170 |
529 |
35 |
90 |
4-φ26 |
95 |
135 |
25 |
86 |
100 |
M20×34 |
|
8195/13 |
572 |
250 |
430 |
380 |
480 |
440 |
530 |
170 |
529 |
35 |
90 |
4-φ26 |
95 |
135 |
25 |
86 |
100 |
M20×34 |
|
8205/11 |
602 |
250 |
448 |
360 |
440 |
440 |
530 |
215 |
530 |
35 |
100 |
4-φ26 |
100 |
165 |
28 |
90 |
106 |
M20×34 |
|
8205/13 |
628 |
250 |
448 |
360 |
440 |
440 |
530 |
215 |
530 |
35 |
100 |
4-φ26 |
100 |
165 |
28 |
90 |
106 |
M20×34 |
|
8215/13 |
650 |
265 |
485 |
395 |
480 |
475 |
580 |
210 |
575 |
40 |
110 |
4-φ26 |
110 |
165 |
28 |
100 |
116 |
M20×34 |
|
8215/16 |
675 |
265 |
485 |
395 |
480 |
475 |
580 |
210 |
575 |
40 |
110 |
4-φ26 |
110 |
165 |
28 |
100 |
116 |
M20×34 |
|
8215/17 |
692 |
280 |
526 |
420 |
540 |
520 |
620 |
230 |
610 |
40 |
115 |
4-φ33 |
120 |
165 |
32 |
109 |
127 |
M20×34 |
|
8235/16 |
736 |
280 |
526 |
420 |
540 |
520 |
620 |
230 |
610 |
40 |
115 |
4-φ33 |
120 |
165 |
32 |
109 |
127 |
M20×34 |
|
8235/18 |
778 |
300 |
562 |
460 |
580 |
560 |
670 |
260 |
667 |
45 |
120 |
4-φ33 |
130 |
200 |
32 |
119 |
137 |
M24×41 |
|
8245/16 |
800 |
300 |
562 |
460 |
580 |
560 |
670 |
260 |
667 |
45 |
120 |
4-φ33 |
130 |
200 |
32 |
119 |
137 |
M24×41 |
|
8245/18 |
816 |
335 |
614 |
480 |
630 |
580 |
720 |
263 |
729 |
45 |
128 |
4-φ39 |
140 |
200 |
36 |
128 |
148 |
M24×41 |
|
8255/18 |
837 |
335 |
614 |
480 |
630 |
580 |
720 |
263 |
729 |
45 |
128 |
4-φ39 |
140 |
200 |
36 |
128 |
148 |
M24×41 |
|
8255/17 |
956 |
375 |
670 |
520 |
670 |
630 |
780 |
320 |
815 |
50 |
140 |
4-φ39 |
160 |
240 |
40 |
147 |
169 |
M24×41 |
|
8255/19 |
978 |
375 |
670 |
520 |
670 |
630 |
780 |
320 |
815 |
50 |
140 |
4-φ39 |
160 |
240 |
40 |
147 |
169 |
M24×41 |
二級(jí)臥式直聯(lián)型外形安裝尺寸圖表
|
功率 |
尺寸 |
型號(hào) |
|
8165
/09 |
8165
/10 |
8165
/11 |
8175
/09 |
8175
/10 |
8175
/11 |
8185
/10 |
815
/11 |
8195
/11 |
8195
/13 |
8205
/11 |
8205
/13 |
|
0.18 |
DM |
130 |
|
|
130 |
|
|
|
|
|
|
|
|
|
J |
100 |
|
|
100 |
|
|
|
|
|
|
|
|
|
L |
624 |
|
|
670 |
|
|
|
|
|
|
|
|
|
重量 |
|
|
|
|
|
|
|
|
|
|
|
|
|
0.25 |
DM |
140 |
140 |
|
140 |
|
|
|
|
|
|
|
|
|
J |
125 |
125 |
|
125 |
|
|
|
|
|
|
|
|
|
L |
670 |
670 |
|
670 |
|
|
|
|
|
|
|
|
|
重量 |
|
|
|
|
|
|
|
|
|
|
|
|
|
0.37 |
DM |
140 |
140 |
|
140 |
|
|
140 |
|
|
|
|
|
|
J |
125 |
125 |
|
125 |
|
|
125 |
|
|
|
|
|
|
L |
624 |
624 |
|
670 |
|
|
707 |
|
|
|
|
|
|
重量 |
|
|
|
|
|
|
|
|
|
|
|
|
|
0.55 |
DM |
175 |
175 |
|
175 |
|
|
175 |
|
|
|
|
|
|
J |
160 |
160 |
|
160 |
|
|
160 |
|
|
|
|
|
|
L |
655 |
655 |
|
701 |
|
|
756 |
|
|
|
|
|
|
重量 |
|
|
|
|
|
|
|
|
|
|
|
|
|
0.75 |
DM |
175 |
|
175 |
175 |
|
175 |
175 |
|
175 |
|
|
|
|
J |
160 |
|
160 |
160 |
|
160 |
160 |
|
160 |
|
175 |
|
|
L |
655 |
|
655 |
701 |
|
655 |
756 |
|
838 |
|
160 |
|
|
重量 |
|
|
|
|
|
|
|
|
|
|
879 |
|
|
1.1 |
DM |
|
195 |
|
|
195 |
|
195 |
|
195 |
|
|
|
|
J |
|
170 |
|
|
170 |
|
170 |
|
170 |
|
195 |
|
|
L |
|
681 |
|
|
726 |
|
768 |
|
850 |
|
170 |
|
|
重量 |
|
|
|
|
|
|
|
|
|
|
891 |
|
|
1.5 |
DM |
|
195 |
|
|
195 |
|
195 |
|
195 |
|
|
|
|
J |
|
170 |
|
|
170 |
|
170 |
|
170 |
|
195 |
|
|
L |
|
705 |
|
|
750 |
|
792 |
|
874 |
|
170 |
|
|
重量 |
|
|
|
|
|
|
|
|
|
|
915 |
|
|
2.2 |
DM |
|
215 |
215 |
|
215 |
215 |
215 |
|
215 |
215 |
|
215 |
|
J |
|
185 |
185 |
|
185 |
185 |
185 |
|
185 |
185 |
|
185 |
|
L |
|
745 |
747 |
|
790 |
794 |
823 |
|
914 |
930 |
|
982 |
|
重量 |
|
|
|
|
|
|
|
|
|
304 |
|
|
|
3.0 |
DM |
|
|
215 |
|
|
215 |
|
215 |
215 |
|
|
215 |
|
J |
|
|
185 |
|
|
185 |
|
185 |
185 |
|
|
158 |
|
L |
|
|
747 |
|
|
794 |
|
854 |
914 |
|
|
982 |
|
重量 |
|
|
|
|
|
|
|
|
|
|
|
|
|
4 |
DM |
|
|
230 |
|
|
230 |
|
230 |
215 |
230 |
|
230 |
|
J |
|
|
190 |
|
|
190 |
|
190 |
185 |
190 |
|
190 |
|
L |
|
|
764 |
|
|
811 |
|
882 |
914 |
947 |
|
999 |
|
重量 |
|
|
|
|
|
|
|
|
|
321 |
|
|
|
5.5 |
DM |
|
|
|
|
|
270 |
|
270 |
230 |
270 |
|
270 |
|
J |
|
|
|
|
|
210 |
|
210 |
190 |
210 |
|
210 |
|
L |
|
|
|
|
|
874 |
|
934 |
931 |
1010 |
|
1062 |
|
重量 |
|
|
|
|
|
|
|
|
|
|
|
|
|
7.5 |
DM |
|
|
|
|
|
|
|
270 |
270 |
270 |
|
270 |
|
J |
|
|
|
|
|
|
|
210 |
210 |
210 |
|
210 |
|
L |
|
|
|
|
|
|
|
972 |
994 |
1048 |
|
1100 |
|
重量 |
|
|
|
|
|
|
|
|
|
|
|
|
二級(jí)臥式直聯(lián)型外形安裝尺寸圖表
|
功率 |
尺寸 |
型號(hào) |
|
8215/13 |
8215/16 |
8225/13 |
8225/17 |
8235/16 |
8235/18 |
8245/16 |
8245/18 |
8255/17 |
8255/19 |
|
1.5 |
DM |
195 |
|
195 |
|
|
|
|
|
|
|
|
J |
170 |
|
170 |
|
|
|
|
|
|
|
|
L |
968 |
|
1010 |
|
|
|
|
|
|
|
|
重量 |
|
|
|
|
|
|
|
|
|
|
|
2.2 |
DM |
215 |
|
215 |
|
215 |
|
215 |
|
|
|
|
J |
185 |
|
185 |
|
185 |
|
185 |
|
|
|
|
L |
1008 |
|
1050 |
|
1136 |
|
1174 |
|
|
|
|
重量 |
|
|
|
|
|
|
|
|
|
|
|
3 |
DM |
218 |
|
215 |
|
|
|
215 |
|
215 |
|
|
J |
185 |
|
185 |
|
|
|
185 |
|
185 |
|
|
L |
1008 |
|
1050 |
|
|
|
1174 |
|
1361 |
|
|
重量 |
|
|
|
|
|
|
|
|
|
|
|
4 |
DM |
230 |
|
230 |
|
230 |
|
230 |
|
230 |
|
|
J |
190 |
|
190 |
|
190 |
|
190 |
|
190 |
|
|
L |
1025 |
|
1067 |
|
1153 |
|
1191 |
|
1331 |
|
|
重量 |
|
|
|
|
|
|
|
|
|
|
|
5.5 |
DM |
270 |
|
270 |
|
270 |
|
270 |
|
270 |
|
|
J |
210 |
|
210 |
|
210 |
|
210 |
|
210 |
|
|
L |
1088 |
|
1130 |
|
1216 |
|
1254 |
|
1394 |
|
|
重量 |
|
|
|
|
|
|
|
|
|
|
|
7.5 |
DM |
270 |
270 |
270 |
|
270 |
|
270 |
|
270 |
|
|
J |
210 |
210 |
210 |
|
210 |
|
210 |
|
210 |
|
|
L |
1126 |
1151 |
1168 |
|
1254 |
|
1292 |
|
1432 |
|
|
重量 |
|
|
|
|
|
|
|
|
|
|
|
11 |
DM |
|
325 |
325 |
|
325 |
|
325 |
|
325 |
|
|
J |
|
255 |
255 |
|
255 |
|
255 |
|
255 |
|
|
L |
|
1187 |
1247 |
|
1290 |
|
1328 |
|
1468 |
|
|
重量 |
|
|
|
|
|
|
|
|
|
|
|
15 |
DM |
|
|
325 |
|
325 |
|
325 |
325 |
325 |
|
|
J |
|
|
255 |
|
255 |
|
255 |
255 |
255 |
|
|
L |
|
|
1292 |
|
1335 |
|
1373 |
1394 |
1531 |
|
|
重量 |
|
|
|
|
|
|
|
|
|
|
|
18.5 |
DM |
|
|
400 |
|
|
400 |
|
400 |
400 |
|
|
J |
|
|
310 |
|
|
310 |
|
210 |
310 |
|
|
L |
|
|
1402 |
|
|
1467 |
|
1504 |
1623 |
|
|
重量 |
|
|
|
|
|
|
|
|
|
|
|
22 |
DM |
|
|
|
|
|
400 |
|
400 |
400 |
|
|
J |
|
|
|
|
|
310 |
|
310 |
310 |
|
|
L |
|
|
|
|
|
1467 |
|
1504 |
1623 |
|
|
重量 |
|
|
|
|
|
|
|
|
|
|
|
30 |
DM |
|
|
|
|
|
|
|
|
|
450 |
|
J |
|
|
|
|
|
|
|
|
|
345 |
|
L |
|
|
|
|
|
|
|
|
|
1691 |
|
重量 |
|
|
|
|
|
|
|
|
|
|
|
37 |
DM |
|
|
|
|
|
|
|
|
|
|
|
J |
|
|
|
|
|
|
|
|
|
|
|
L |
|
|
|
|
|
|
|
|
|
|
|
重量 |
|
|
|
|
|
|
|
|
|
|